FLD\FKQ-N流量閥、開關閥
丁寶勤 13906276368(技術)
電話:0513-88400999 傳真:0513-88400998 郵箱:jszk@vip.163.com
一、概述
流量控制閥用做控制庫底卸出的物料量,通常與回轉閥一起使用。物料先通過一段小斜槽,使物料流態化,然后進人流量閥,這樣可以避免流量控制部分形成料柱。流量控制閥由電動執行器調節開度,可實現遠距離控制閥門的開度,以滿足系統統計量的要求。回轉閥主要在物料流量控制系統中作開關用,通常與電動流量控制閥串聯配套使用。廣泛適用于建材、冶金、化工、糧食、玻璃等行業。
二、結構特點
流量控制閥和回轉閥設計科學合理、機構緊湊、閥芯開有U型槽口,調節槽口開度可進行流量控制,指示盤可指示閥芯開度,閥芯與電動執行機構的聯軸器增設安全銷,保證閥芯和執行機構不受損壞,在閥的進口設有襯墊,將閥體與閥芯隔開,襯墊與閥芯之間徑向間隙可調整,以保證閥芯運轉的靈活性。流量控制閥配用DKJ執行器。回轉閥配用10-5A氣動推桿。
三、性能參數

四、工作原理
流量控制閥主要有機座、閥體、密封閥、襯套、閥芯、軸承、透氣層、充氣槽及傳動裝置組成。風機給予低壓小容量空氣,經通道口由充氣槽充氣,氣體透過透氣層,均勻向上噴吹,鼓動物料向上位移,物料自重下落時,由設備安裝斜度而產生位移,不斷重復致使物料向前位移。執行機構帶動聯軸器,閥芯動作,以調節物料流量。回轉閥只作開關作用,通過電磁閥控制氣動推桿氣源來指令推桿動作,完成切換動作。


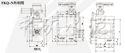
五、外形連接尺寸

六、使用說明
安裝前請檢查內腔有無雜物附著,否則會堵塞U型閥芯和損壞閥件。查看沸騰板受潮沒有,如沸騰板受潮請更換后再進行安裝,否則影響使用效果。檢查各傳動部分是否靈活可靠。裝時傳動部分不允許做吊裝用,并嚴禁損傷。兩法蘭連接中間需加密封墊片,然后均勻擰緊聯接螺栓。
上一頁:[粉體閥門]
下一頁:BZ-Ⅰ/Ⅱ棒條閘門












