雙軸攪拌機
周先生 13906278080 丁寶勤 13906276368
電話:0513-88400999 傳真:0513-88400998 郵箱:jszk@vip.163.com


產品簡介
江蘇中礦生產的雙軸攪拌機(雙軸加濕攪拌機)用途:雙軸攪拌機(雙軸加濕攪拌機)用于火力發電廠除塵系統成集發庫干發滅排放系統,可防It環境污染和改善運行人員的外動條件。本機能夠使排放的干灰成為含水均勻的濕灰送入下道工序。它亦可作為氣力除灰系統高濃度水力輸送時的中間輸送設備。
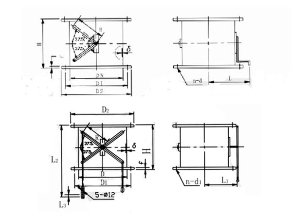
結構特點
? 雙軸攪拌機(雙軸加濕攪拌機)結構上為雙軸,葉片材料為鐵基耐磨合金或復合陶瓷。
? 雙軸攪拌機(雙軸加濕攪拌機)帶有特制氰化噴嘴及指示到水量可調系統,可隨時監控給水單,保證灰的溫度要求。
? 雙軸攪拌機(雙軸加濕攪拌機)采用迷宮多膠密封。可靠性強、磨損輕。
? 雙軸攪拌機(雙軸加濕攪拌機)主軸電機和供料電機機均有電流保護裝置。
上一頁:空氣電加熱器
下一頁:干灰散裝機










